Studio
Ivan Pozzi
Filosofia
Progetti
Edilizia
Interni
Concorsi
Collaborazioni
Partners
Servizi lowcost
Perchè lowcost
Come funziona
Servizi e costi
Contatti
DETTAGLIO PROGETTO
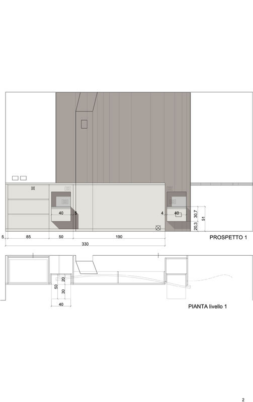
05.12 - Arredamento camera
Progetto arredamento camera da letto - villa privata
Progetto 05.12 - Arredamento camera
Progetto 05.12 - Arredamento camera
Progetto 05.12 - Arredamento camera
Progetto 05.12 - Arredamento camera.
Progetto 05.12 - Arredamento camera
Dott.Arch. Ivan Pozzi
|
Via Carducci, 2
|
21046 Malnate (Va)
|
P.IVA 12345678912
|
mobile +39 340 9660294
|
ivan@studioivanpozzi.it
HOME